
Phone: ( 206) 492-0500

















Design and drafting - CAD Seattle is a premier company dedicated to providing premier design and CAD drafting services in Seattle, Lynnwood, Bellevue, Redmond, Bothell, Kirkland, Kent and in Tacoma. Licensed by the State of Washington, It is important to CAD Seattle to deliver unparalleled accuracy in every assignment. We offer a wide range of CAD drafting services to home owners, architects, engineers and home builders. We also offer additional services like supporting in the permit process, HOA representation, coordination with builders, engineers and City officials. Developing site plans is also our expertise. Be it residential or commercial, we promise and guarantee that CAD Seattle will meet or exceed your expectation.

We have been providing design services for over 17 years. Our design in both residential and commercial projects could be seen in Washington and also in other parts of the country. Having award winning designers in our team, we continue to serve to the best of our ability by combining artistic talent and building science all under one roof. It is not how many years we have been providing design services or in how many sites you could see our design - it is that we are able to share our gifted designers lifelong passion for your need is what we cherish the most. All images published on this website came from our well diversified portfolio and we have a lot more to share - Just ask us!

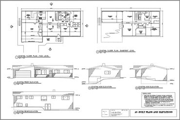
As-built plans we are good at! We know how buildings are built and that makes us stand out from so many other companies around. We use state of the art equipment in laser technology to obtain measurements for greater accuracy and we have earned the respect from our valuable clients. When you assign us to provide as built plans for existing buildings, no matter how complex it is - we guarantee you will get plans that is accurate, precise and well developed.
See us on YouTube!! CAD SEATTLE provides a broad spectrum of design & drafting services. Whether planning your dream home or just considering a small scale makeover, CAD SEATTLE can provide the intimate attention that will set your project apart from the ordinary.
See us on YouTube!! Combining our academic knowledge of building construction with decades long field experience, we are humbled to earn the respect from our wide range of clients like building owners, property owners, architects and engineers.


To get a free quote, please contact us at your convenience. We look forward to serving you.
Monday - Friday: 8am - 5pm
Saturday - Sunday: Closed